+375 29 676 45 77

+39 333 854-78-01

Wooden house in Vasilevichi
  • The total area of the wooden house: 98,3 m2
  • Quantity of floors: 1
  • Garage area: 20,6 m2

Manufacturer: HOUSE BELAPARI 

Wooden house in Vasilevichi, Gomel region

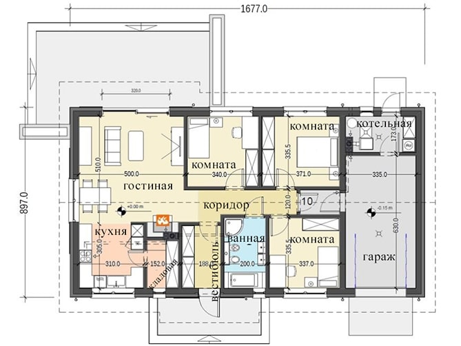
1st floor of a house made of double dry profiled timber

Living room 26,4  m2
Room 11,1  m2
Room 12,1  m2
Room 11,0  m2
Hall 2,1  m2
Kitchen 9,5  m2
Bathroom 6,4  m2
Vestibule 5,4  m2
Boiler room 5,3  m2
Pantry 3,3  m2
Corridor 5,7  m2
Garage 20,6  m2
Wall material kit Double dry timber 70*140mm
Insulation Ecowool
Antiseptic production-Czech  Republic

 

Our houses

 

Яндекс.Метрика