+375 29 676 45 77

+39 333 854-78-01

Wooden house in Smilovichi
  • The total area of the wooden house: 98,96 m2
  • Quantity of floors: 1
  • Terrace area: 34,0 m2

Manufacturer: HOUSE BELAPARI 

Wooden house in Smilovichi, Minsk region.

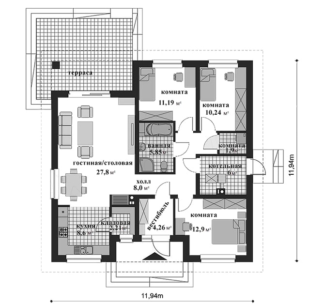
1st floor of a house made of double dry profiled timber

Living room 27,8  m2
Room 11,19  m2
Room 10,24  m2
Room 12,9  m2
Hall 8,0  m2
Room 1,9  m2
Kitchen 8,6  m2
Bathroom 5,85  m2
Vestibule 4,26  m2
Boiler room 6,0  m2
Pantry 2,2  m2
Terrace 34,0  m2
Wall material kit Double dry timber 70*140mm
Insulation Ecowool
Antiseptic production-Czech  Republic
Our houses

 

Яндекс.Метрика