+375 29 676 45 77

+39 333 854-78-01

Wooden house in Shklov
  • The total area of the wooden house: 86,0 m2
  • Quantity of floors: 1
  • Terrace area: 50,7m2

Manufacturer: HOUSE BELAPARI 

Wooden house in Shklov, Mogilev region

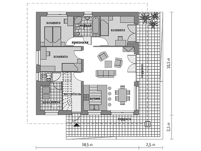
1st floor of a house made of double dry profiled timber

Living room 27,0  m2
Room 10,4  m2
Room 10,1  m2
Room 10,0  m2
Hallway 2,2  m2
Kitchen 6,2  m2
Bathroom 5,1  m2
Vestibule 8,1  m2
Boiler room 5,8  m2
Toilet 1,1  m2
Terrace 50,7  m2
Wall material kit Double dry timber 70*140mm
Insulation Ecowool
Antiseptic production-Czech  Republic
Our houses

 

Яндекс.Метрика