+375 29 676 45 77

+39 333 854-78-01

Wooden house in Novopolotsk
  • The total area of the wooden house: 76,53 m2
  • Quantity of floors: 1

Manufacturer: HOUSE BELAPARI 

Wooden house in Novopolotsk, Vitebsk region.

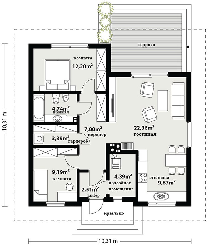
1st floor of a house made of double dry profiled timber

Living room 22,36  m2
Room 12,20  m2
Room 9,19  m2
Dining room 9,87 m2
Corridor 7,88  m2
Bathroom 4,74  m2
Wardrobe 3,39  m2
Utility room 4,39  m2
Tambour 2,51  m2
Wall material kit Double dry timber 70*140mm
Insulation Ecowool
Antiseptic production-Czech  Republic
Our houses

 

Яндекс.Метрика