+375 29 676 45 77

+39 333 854-78-01

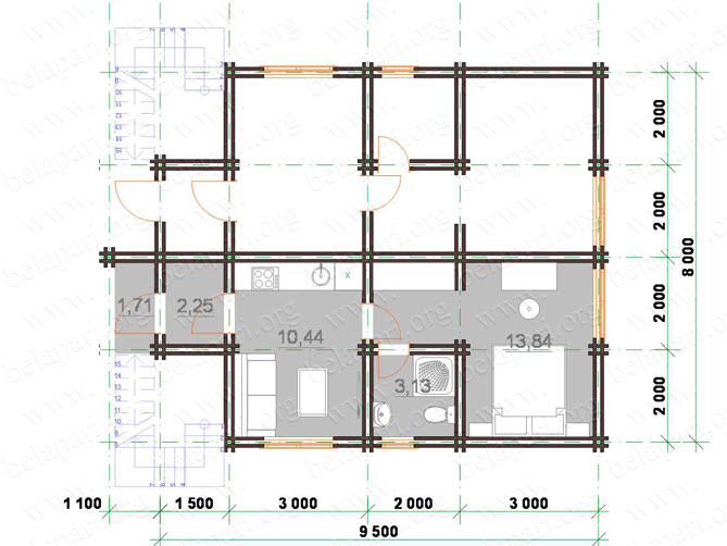
Hotel "Poland"
  • The total area of the house with a terrace and a balcony: 125.6 m2
  • Quantity of floors: 2
  • Floor height: 2,66 m

Manufacturer: HOUSE BELAPARI 

Hotel "Poland" is constructed of double dry profiled timbers of the Finnish technology.

Hotel "Poland" consists of 4 double rooms with separate entrance to each.
The area of each room - 31,4 m2.

Our houses

 

Яндекс.Метрика