Manufacturer: HOUSE BELAPARI
1st floor of a house made of double dry profiled timber
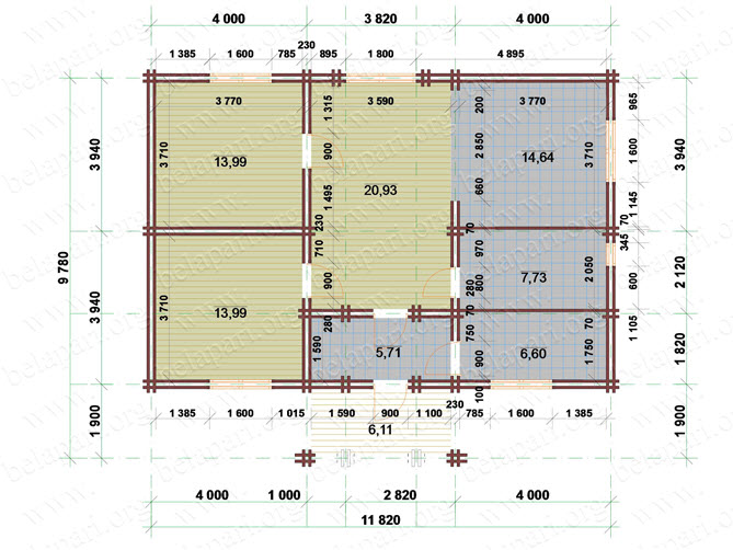
| Room | 13,99 | m2 |
| Room | 13,99 | m2 |
| Living room | 20,93 | m2 |
| Kitchen | 14,64 | m2 |
| Bathroom | 7,73 | m2 |
| Vestibule | 5,71 | m2 |
| San.node | 6,60 | m2 |
| Porch | 6,11 | m2 |
| Wall material kit | Double dry timber 70*140mm | |
| Insulation | Ecowool | |
| Antiseptic | production-Czech Republic | |

