+375 29 676 45 77

+39 333 854-78-01

Guest house in Kobrin
  • The total area of the house: 20,0 m2
  • Terrace area: 6,95 m2
  • Quantity of floors: 1
  • Floor height: 2,66 m

Manufacturer: HOUSE BELAPARI 

Guest house made of double timber in Kobrin

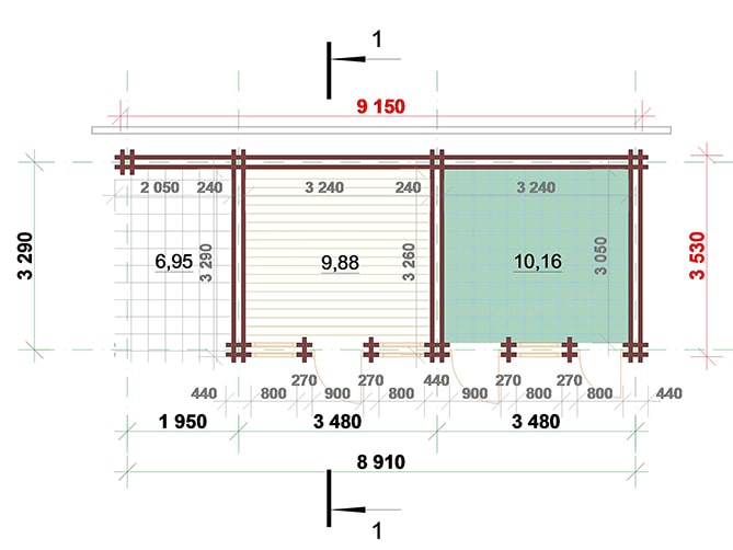
1st floor of a house made of double dry profiled timber

Room 10,16  m2
Room 9,88  m2
Terrace 6,95 m2
Wall material kit Double dry timber 70*140mm
Insulation Ecowool
Antiseptic production-Czech  Republic
Our houses

 

Яндекс.Метрика