+375 29 676 45 77
+39 333 854-78-01
Main
Projects
Projects of houses from a bar up to 100 m2
Projects of wooden houses up to 100 m2
Projects of wooden houses up to 150 m2
Projects of houses from a bar up to 150 m2
Projects of houses from a bar 150m2 and more
Projects of wooden houses 150m2 and more
Projects bathhouses from a bar
Projects wooden bathhouses
About the company
Our advantages
What we are proud of
Gallery
Photo gallery
Production
Profiled timbers
Properties of wood
Construction
Construction of houses
Construction of bath-houses
Base
House insulation
Roof
Impregnation
Electrical wiring
Prices
Contacts
You are here:
Main
/
Projects
/
Projects of houses from a bar 150m2 and more
/
Wooden house "Serafimovo"
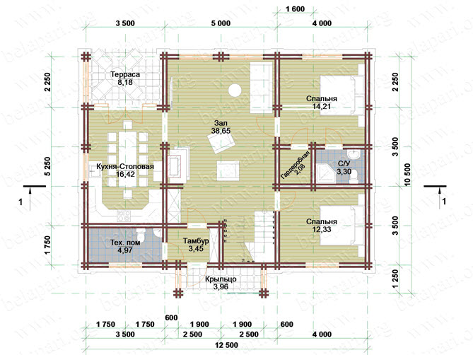
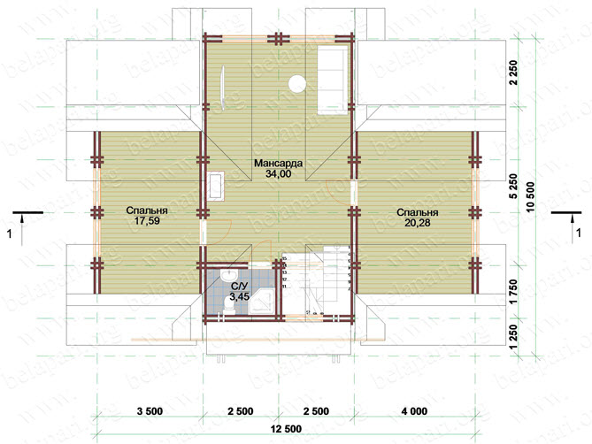
Wooden house "Serafimovo"
The total area of the house with a terrace :
182,84 m2
Quantity of floors:
2
Floor height: :
2,94 m
Manufacturer:
HOUSE BELAPARI
Gallery
Wooden house "Ratomka"
Wooden house "Hatezhino"
Our houses
The total area of the house:
143,7 m2
Terrace area:
24,3 m2
The area of the garage:
27,7 m2
Timber house in Silichi
The total area of the house with a terrace:
100,1 m2
Quantity of floors:
1
Floor height:
2.7 m
Timber house in Uzda
The total area of the house with a terrace:
100,1 m2
Quantity of floors:
1
Floor height:
2.7 m
Timber house in Astravets
The total area of the house with a terrace:
100,1 m2
Quantity of floors:
1
Floor height:
2.7 m
Timber house in Molodechno
The total area of the house with a terrace:
100,1 m2
Quantity of floors:
1
Floor height:
2.7 m
Timber house in Malorita
The total area of the house with a terrace:
100,1 m2
Quantity of floors:
1
Floor height:
2.7 m
Timber house in Ivatsevichi
The total area of the house with a terrace:
100,1 m2
Quantity of floors:
1
Floor height:
2.7 m
Timber house in Dyatlovo
The total area of the house with a terrace:
100,1 m2
Quantity of floors:
1
Floor height:
2.7 m
Timber house in Belostok
The total area of the house with a terrace:
100,1 m2
Quantity of floors:
1
Floor height:
2.7 m
Timber house in Danilovichi
The total area of the house with a terrace:
100,1 m2
Quantity of floors:
1
Floor height:
2.7 m
Timber house in Chausy
The total area of the house with a terrace:
100,1 m2
Quantity of floors:
1
Floor height:
2.7 m
Wooden house "Logoysk"
The total area of the house:
86,29 m2
Floor height:
2,8 m
Garage area:
21,07 m2
Timber house in Krichev
The total area of the house:
84,95 m2
Quantity of floors:
1
Timber house in Ivanovo
The total area of the house:
77,6 m2
Quantity of floors:
1
Floor height:
2,8 m
Timber house in Kalinkovichi
The total area of the house:
93,27 m2
Garage area:
13,4 m2
Quantity of floors:
1
Timber house in Krupki
The total area of the house:
84,95 m2
Quantity of floors:
1
Floor height:
2,8 m
Timber house in Bykhov
The total area of the house:
63,4 m2
Terrace area:
24,8 m2
Quantity of floors:
2
Timber house in Rakov
The total area of the house:
29,4 m2
Terrace area:
14,7 m2
Quantity of floors:
1
Timber house in Svir
The total area of the house:
27,9 m2
Terrace area:
14,3 m2
Quantity of floors:
1
Timber house in Osipovichi
The total area of the house:
64,83 m2
Terrace area:
14,19 m2
Quantity of floors:
1
Timber house "Volkovysk"
The total area of the house:
97,0 m2
Terrace area:
9,08 m2
Quantity of floors:
1
Timber house "Dichki"
The total area of the house:
20,0 m2
Terrace area:
6,95 m2
Quantity of floors:
1
Guest house in Kobrin
The total area of the house:
68,76 m2
Terrace area:
35,5 m2
Quantity of floors:
1
Timber church in Borovlyany
The total area of the house:
93,3 m2
Terrace area:
9,1 m2
Quantity of floors:
1
Timber house in Mogilev
The total area of the house:
24,52 m2
Terrace area:
9,59 m2
Quantity of floors:
1
Timber house in Jurmala
The total area of the house:
63,4 m2
Terrace area:
25,2 m2
Quantity of floors:
1
Timber house in Belarus
The total area of the house:
40,56 m2
Terrace area:
24,65 m2
Quantity of floors:
1
House "Vsevolozhsk" from a bar
The total area of the house:
63,4 m2
Terrace area:
25,2 m2
Quantity of floors:
1
Wooden house "Vyacha-2"
The total area of the house:
83,6 m2
Quantity of floors:
1
Floor height:
2,8 m
House "Peresady" from a bar
The total area of the house:
143,7 m2
Terrace area:
24,3 m2
The area of the garage:
27,7 m2
Wooden house "Nesvizh"
The total area of the house :
175,6 m2
Terrace area:
24,8 m2
Quantity of floors:
1
Wooden house "Ratomka"
The total area of the house:
97,7 m2
Terrace area:
13,4 m2
Quantity of floors:
2
Wooden house "Vyacha" from a bar
The total area of the house:
123,5 m2
Terrace area:
27,94 m2
Quantity of floors:
2
Wooden house "Finnish"
The total area of the house with a terrace :
182,84 m2
Quantity of floors:
2
Floor height: :
2,94 m
Wooden house "Serafimovo"
The total area of the house with a terrace:
140,0 m2
Quantity of floors:
1
Floor height:
2,52 m
Wooden house "Cyprus"
The total area of the premises of the bath timber:
73,2 m2
Terrace area:
25,87 m2
Floors:
1
Bath "Naroch" from a bar
Total area of the house:
70,2 m2
Quantity of floors:
1
Floor height:
3,3 m
The Church of St. Prince Oleg of Bryansk in Dobrush
The total area of the house with a terrace:
140,0 m2
Quantity of floors:
1
Floor height:
2,52 m
Wooden house "Rim"
The total area of the premises of the bath timber:
26,97 m2
Terrace area:
4,82 m2
Floors:
1
Bath "Pinsk" from a bar
The total area of the house with a terrace:
116,8 m2
Quantity of floors:
1
Floor height:
2,8 m
Wooden house "Zaslavl"
The total area of the house with a terrace:
56,8 m2
Quantity of floors:
2
Floor height:
2,52 m
Wooden house "Raubichi-2" from a bar
The total area of the house with a terrace:
73,6 m2
Quantity of floors:
1
Floor height:
2,8 m
Wooden house "Stankovo" from a bar
The total area of the house with a terrace:
129,75 m2
Quantity of floors:
1
Floor height:
2,8 m
Wooden house "Soligorsk"
Total area of the house:
60,8 m2
Quantity of floors:
1
Floor height:
2,8 m
The house "Puhovichi" from a bar
The total area of the house :
239,6 m2
Quantity of floors:
2
Floor height: :
2.8 m
Wooden house "Hatezhino"
The total area of the house with a terrace and a balcony:
125.6 m2
Quantity of floors:
2
Floor height:
2,66 m
Hotel "Poland"
The total area of the house with a terrace:
201,5 m2
Quantity of floors:
1
Floor height:
2.66 m
Guest house "Naroch"
The total area of the house with a terrace:
Quantity of floors:
2
Floor height:
Wooden house "Naroch"
The total area of the house with a terrace:
Quantity of floors:
2
Floor height:
Wooden house "Baranovichi"
The total area of the house with a terrace:
143,7 m2
Quantity of floors:
2
Floor height:
Wooden house "Volberovo"
The total area of the house with a terrace:
237,9 m2
Quantity of floors:
2
Floor height:
2,8 m
Wooden house "Korma"
The total area of the house with a terrace:
140,6 m2
Quantity of floors:
1
Floor height:
2,8 m
Wooden house "Gladyshevskoe"
The total area of the premises of the bath timber:
84,2 m2
Terrace area:
49,6 m2
Floors:
1
Bath "Baturinka" from a bar
The total area of the house with a balcony and a terrace:
158 m2
Quantity of floors:
2
Floor height:
Wooden house "Olekhnovichi"
The total area of the house with a balcony and a terrace:
Quantity of floors:
Floor height:
Wooden house "Sloboda"
The total area of the house :
129,3 m2
Terrace area:
5,44 m2
Quantity of floors:
1
Wooden house "Kolodishchi"
The total area of the house with a terrace:
20,0 m2
Quantity of floors:
1
Floor height:
2.52 m
Wooden house "Repino"
The total area of the house with a terrace:
Quantity of floors:
Floor height:
Wooden house "Kryzhovka"
Total area of the house:
29,4 m2
Quantity of floors:
1
Floor height:
3,01 m
House hunting "Budilova"
The total area of the house with a terrace:
136.8 m2
Quantity of floors:
2
Floor height:
2.8 m
Wooden house "Vitebsk"
The total area of the premises of the bath timber:
18,6 m2
Terrace area:
17,4 m2
Ffloors:
1
Bathhouse "Zelenoe" from a bar
The total area of the house with a terrace:
165,6 m2
Quantity of floors:
2
Floor height:
2,8 m
Wooden house "Bobruisk"
The total area of the house with a terrace:
213 m2
Quantity of floors:
2
Floor height:
2,87 m
Wooden house "Leskovka"
The total area of the house with a terrace:
Quantity of floors:
2
Floor height:
Wooden house "Oslo"
The total area of the house with a terrace:
245,5 m2
Quantity of floors:
2
Floor height:
2,94 m
Cottage "St. Petersburg"
The total area of the house with a terrace:
157,1 m2
Quantity of floors:
2
Floor height:
2.66 m
Wooden house "Matrosovo"
The total area of the house with a terrace:
123,9 m2
Quantity of floors:
2
Floor height:
2,73 m
Wooden house "Gorkovskoe"
The total area of the house with a terrace:
Quantity of floors:
2
Floor height:
Cottage "Shchemyslitsa"
The total area of the house with a terrace:
159,9 m2
Quantity of floors:
2
Floor height:
2,87 m
Wooden house "Leningrad"
The total area of the house with a terrace:
Quantity of floors:
Floor height:
House "Zelenogorsk"
The total area of the house with a terrace:
Quantity of floors:
2
Floor height:
Cottage "Privetninskoye"
The total area of the house with a terrace:
157,3 m2
Quantity of floors:
2
Cottage "Petrishki"
The wooden house with a terrace :
142,2 m2
Quantity of floors:
2
Floor height:
Wooden house "Braslav"
The wooden house with a terrace :
Quantity of floors:
Floor height:
Wooden house Grodno
The wooden house with a terrace :
Quantity of floors:
Floor height:
Wooden house "Gomel"
The wooden house with a terrace and a porch:
141 m2
Quantity of floors:
2
Floor height:
2,8 m
Wooden house "Ladva"
The total area of the house with a terrace:
Quantity of floors:
Floor height:
Wooden house "Zhlobin"
The total area of the house with a terrace:
129,9 m2
Quantity of floors:
2
Floor height:
2,52 m
Wooden house "Moscow"
The total area of the house with a terrace:
Quantity of floors:
Floor height:
Wooden house "Lithuania"
The total area of the house with a terrace:
133 m2
Quantity of floors:
2
Cottage "Gomel"
The total area of the temple premises:
60,4 м2
Total area of the terrace:
7,7 м2
Quantity of floors:
1
Church of the Annunciation of the Blessed Virgin
The total area of the premises of the bath timber:
83 m2
Terrace area:
16,0 m2
Floors:
2
Bathhouse "Logoysk" from a timber
The total area of the premises of the bath timber:
54,83 m2
Terrace area:
19,53 m2
Floors:
1
Bathhouse "Drozdovo" from a bar
The total area of a bathhouse with terraces:
140 m2
Quantity of floors:
2
Floor height:
Sauna of "Zaslavl" from a bar
The total area of a bathhouse with terraces:
60,2 m2
Quantity of floors:
1
Floor height:
2.52 m
Bathhouse "Brest" from a bar
The total area of a bathhouse with terraces:
94.2 m2
Quantity of floors:
1
Floor height:
2.52 m
Bathhouse "Dzerzhinsk" from a bar
The total area of the premises of the bath timber:
22,3 m2
Terrace area:
28,68 m2
Floors:
1
Bathhouse "Grodno" from a bar
Total area of the house:
61,05 m2
Quantity of floors:
1
Floor height:
2,52 m
Wooden house "Italy"
The total area of the house with a balcony and a terrace:
Quantity of floors:
Floor height:
Cottage "Mostishche"
The total area of the house with a terrace:
Quantity of floors:
Floor height:
Wooden house "Slutsk"
The total area of the house with a terrace:
100,1 m2
Quantity of floors:
1
Floor height:
2.7 m
Wooden house "Logoysk"
The total area of the house with a balcony and a terrace:
157,7 m2
Quantity of floors:
2
Floor height:
2,8 m
Wooden house "Rogachyov"
Total area of a bathhouse:
Quantity of floors:
1
Floor height:
Bathhouse "Shchemyslits" from a bar
The total area of the house with a balcony and a terrace:
230 м2
Quantity of floors:
2
Floor height:
Wooden house "Raubichi"
The total area of the house with a balcony and a terrace:
139,7 m2
Quantity of floors:
2
Floor height:
Wooden house "Borisov"
The total area of the house with a terrace:
Quantity of floors:
2
Floor height:
Wooden house "Belino"
Total area of the house:
93,9 м2
Quantity of floors:
1
Floor height:
2,8 м
Wooden house "Myadel"
The total area of the house with a terrace:
49,0 m2
Quantity of floors:
1
Floor height:
2.66 m
Wooden house "Kaliningrad" from a bar
Total area of the house with a terrace:
51,83 m2
Quantity of floors:
2
Floor height:
2.8 m
The house "Dzerzhinsk" from a bar